買いたい
売りたい
建てたい
おうちナビ
新規会員登録・ログイン
不動産詳細Property Detail
価格:6,550万円
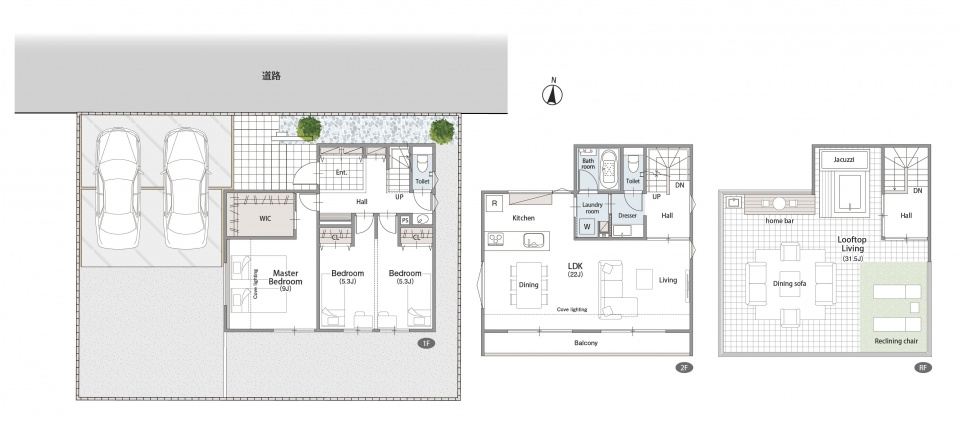
屋上のある邸宅 アウトレット木更津まで徒歩2分 買物に便利なベイシア、コストコ、カインズホームへ車で4分圏内。 日常の中で屋上での非日常リア府を味わえます。
総額:0万円(税込)
※上記支払例の借入条件:金利0.775%、 借入総額6,550万円、借入期間35年
頭金0円 / ボーナス払い0円
月々:円
※上記支払例の借入条件:金利0.775%、 借入総額万円、借入期間35年
新築一戸建て建築の目安としてご参考ください。
新築セットプランの建物価格は参考価格です。土地代金と建物価格以外に、契約事務手数料や外構工事を含む付帯工事費用が必要です。 また、土地の条件によっては、建築できない場合や土地の上物解体費用や造成工事に費用がかかる場合があります。予めご了承ください。
※掲載の間取り図は各面積タイプの代表的な例です。他にも多数プランをご用意していますので、お気軽にお問い合わせください。
総額:0.0万円(税込)※各部位のチェックを外すと支払金額が変わります。
※学校区は住所から自動判定したものであり、保証できる情報ではございません。正確な学校区はお問い合わせ下さい。
お問い合わせフォームはこちら
※地図上の「ピンマーク」の位置は「町名」もしくは「丁目」がある場合は「丁目」にマッピングされています。実際の場所ではございません。
現在192件ご紹介可能!
売主様のご要望で一般には公開していない 「非公開不動産」を会員様だけに限定公開しています。